177 Prospect Place
Sold

177 Prospect Place

177 Prospect Place, Brooklyn, NY 11238

$6,500,000
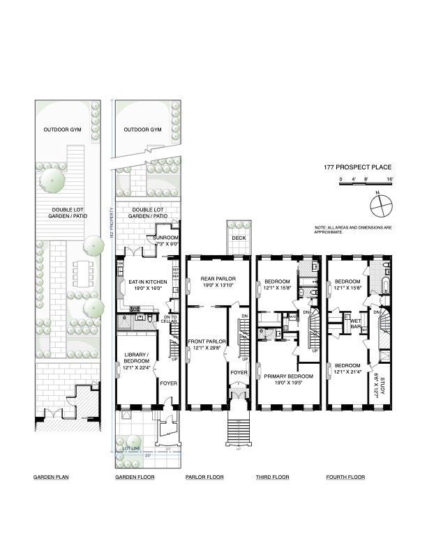
At the epicenter of the Prospect Heights historic district sits 177 Prospect Place, a singular and poetic Italianate brownstone on a rare 162' lot, with a Noguchi-inspired garden.

Exquisitely restored and reimagined under the stewardship of its fourth owner since the home was built in 1871, this distinctive single-family is both a paean to bygone Brooklyn and an elegant ode to the integration of past and present. Previously converted to a three-family - its historic details buried under a characteristically linoleum-heavy 1960s design - the home has been brought back to life over twenty-six years of inspiration and investment.

Original parquet floors, decorative marble fireplaces and mantelpieces, crown moldings and medallions, etched glass, walnut banisters, and pier mirrors now shine with exquisite care. The restored Italianate foundations are complemented by historically accurate customizations: 18 custom-built windows with mahogany frames, including double-height casements on the parlor level; foyer stone cut from the last slab of marble remaining from the lobby of the Empire State Building. Rewired chandeliers hang from over 12' ceilings on the parlor floor, giving the home a quality of suspended light and space rare even amongst its fellow 20' townhouses.

Essential modernizations have been made in harmony with the home's historic palette; rich natural materials shine through in ageless simplicity. Walnut pocket doors across the bedroom floor maintain a sense of openness while enclosing serene spaces. The bathrooms and laundry room (with vented Miele washer and dryer) are finished in Mosa tile and walnut, with Corian surround, Duravit sinks, and faucets and fixtures from Barber Wilsons UK. Three-zone central air integrates seamlessly behind cast-iron grilles.

The gut-renovated kitchen, a commercial-grade space designed for indestructibility -- with custom cabinetry and refrigeration by Marlo Manufacturing, and a vented Jade "Supreme" Heavy Duty Range -- is also designed for warmth, with a wood-burning Rumford fireplace, fashioned from bluestone quarried in Alcove, NY (the same stone chosen for a deep Japanese soaking tub in the adjoining bath). A full glass curtain wall creates an immersion in the changing light of the garden, bringing the outdoors in, daylong and year-round.

The Foras Studio-designed sculptural garden itself stretches over 100', providing distinct areas for dining and dreaming, exercising, and entertaining. A marvel of regeneration, no usable materials left the site in the garden's reimagination: rough stone from a '60s gas fireplace found new life as a striking bench that anchors the 162' lot; an old-growth Eastern White Pine, which survived a lightning strike in the 1970s, now shelters three maples, the younger planted from seedlings found on the property. Components salvaged from an antique printing press stored in the cellar for decades were repurposed into accents and equipment for artful fitness and play. The garden is equipped with a fully automatic inground irrigation system installed by LifeSource Irrigation. Discreet bronze light fixtures throughout the garden complement the peacefulness of the outdoor space all evening.

The home's internals have been attended to with the same meticulous care as its external aesthetics, starting with a complete reconstruction of the historic cast iron stoop rail and restoration of the brownstone facade. Three-zone central air was completed in 2009, at the same time that the home was converted to a single-family C of O. The roof was replaced in 2014, and in 2020, the maximum allowable number of solar panels for the Landmark District were installed by Brooklyn SolarWorks. At that time, meters were consolidated, and new code-compliant ventilation conduit was installed from the boiler room. The boiler itself was replaced in 2021, and the main sewer piping connecting to the external city sewer line was fully replaced in 2016. The home also benefits from a co

4
beds

4
baths

3,788 Sq.Ft. LIVING AREA

Michaela Morton

Michaela Morton

Features & Amenities

Interior

  • total bedrooms4
  • Total bathrooms4
  • Laundry room See Remarks
  • Flooring Hardwood
  • Fireplace Decorative, Other
  • other interior Features Built-in Features, Chandelier, Crown Molding, High Ceilings, Recessed Lighting

Area & Lot

  • Status Sold
  • Living Area3,788 Sq.Ft.
  • Total Area3,788 Sq.Ft.
  • MLS® IDRLS20022242
  • TypeResidential
  • YEAR BUILT1871
  • NeighborhoodBrooklyn

Exterior

  • STORIES3
  • AIR CONDITIONINGCentral Air
  • other exterior FeaturesPrivate Outdoor Space Over 60 Sqft

Financial

  • Sales Price$6,500,000
  • Real Estate Tax $10,968/yr

Brooklyn

40.6782° N, 73.9442° W

Explore

Work With Us

The Jane Advisory Team is a true collaborative: creative, insightful, humans first. We love our work. Work with us.

Follow Us on Instagram #ridewithjane #ourjobandourjoy